S18.P02



















Le site des Abattoirs dans lequel va s’implanter le futur siège social de la société Louis Vialard fait parti du paysage patrimonial de la ville de Pauillac depuis 1863, année de commencement des travaux de construction de l’ensemble. Sa valeur patrimoniale a déjà été identifiée.
Patrimoine populaire, il témoigne de l’histoire sociale de la commune à la fin du XIXème siècle, de la construction de nouveaux équipements pour regrouper l’activité des bouchers et charcutiers et mettre fin aux abatages domestiques et privés pratiqués à l’époque.
Patrimoine urbain et architectural, il témoigne des constructions caractéristiques de la fin du XIXème siècle, à l’instar des bâtiments qui se sont développés en centre-ville à cette époque en même temps que l’activité industrielle de la ville.
Or, son usage aura évolué au cours des décennies consubstantiellement à la fin de cette activité. Il s’agit pour nous aujourd’hui, à travers notre approche, de travailler sur la conservation et la valorisation du patrimoine architectural et naturel environnant, mais aussi d’évaluer sa capacité adaptatrice et de proposer un projet de transformation des bâtiments et des espaces extérieurs adapté à sa nouvelle fonction d’accueil du siège social de la société Louis Vialard, baptisé «Villa de l’Estuaire».
Situé au sud du centre-ville et de la zone portuaire de Pauillac, le site fait parti intégrante de la façade urbaine sur l’estuaire. Sa situation privilégiée en fait un trait d’union entre ville et nature, entre paysage urbain proche et paysage naturel lointain. Sur la façade Ouest, le porche s’ouvre sur la ville, sur les maisons qui bordent la rue de la Rivière. Sur la façade Est, la corps central est orienté vers l’Estuaire, vers le grand paysage. En prenant de la hauteur, on aperçoit au loin l’île de Patiras et son phare.
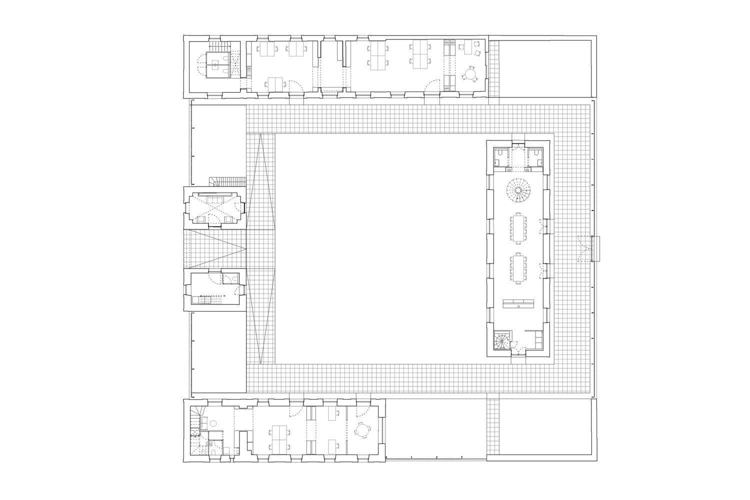
L’ensemble est constitué de quatre corps de bâtiments distincts articulés autour d’une cour centrale minérale et enclos dans un mur d’enceinte en pierre. Le Porche, constitue l’entrée historique du site matérialisée par une arche en pierre et une grille en acier restaurée et conservée dans le cadre du projet de réaménagement. De part et d’autre de la cour se détachent les deux bâtiment annexes latéraux en pierre aussi, presque symétriques, accompagnant la perspective vers le corps de bâtiment central, détaché du mur d’enceinte au milieu du site face au porche d’entrée.
Depuis sa construction, le site fonctionne comme un ensemble clos, optiquement et physiquement fermé. Il constitue depuis la rue de la Rivière une barrière visuelle vers l’Estuaire. Les bâtiments ne sont accessibles que depuis l’intérieur de la cour. Il ne présente aujourd’hui que deux ouvertures sur la façade urbaine au niveau du porche et du portail latéral. L’ensemble constitue un ensemble très minéral. Les façades en pierre des quatre bâtiments dialoguent avec le gravier clair qui recouvre le sol de la cour. Seuls deux espaces plantés sont conservés.